With amazing on-site amenities, ONE|GT will be the capital’s first ten-story structure, rising to 144’ above ground level and offering spectacular multi-aspect views. Its eleventh floor “Sky Club” with its unique infinity edge pool, private cabanas, bar & grille, yoga, treatment, and event areas, will bring a new level of sophisticated enjoyment to Downtown, GT. Whilst its “signature” restaurant, grand café, and many other amenities will ensure owners, tenants and guests can all enjoy ONE|GT to the fullest. There will also be a private residents’ pool, full gym, and separate residents’ entrance, along with onsite covered and valet parking and owner storage units available.
ONE GT Owners will also enjoy a very solid return on investment from the rental program, or owners can choose to rent their units on the open market.
The estimated completion date for this Spectacular Complex is the third quarter of 2025. Enjoy “elevated modern island living” and invest now before completion, as prices will surely increase after completion!
Unit Type A,
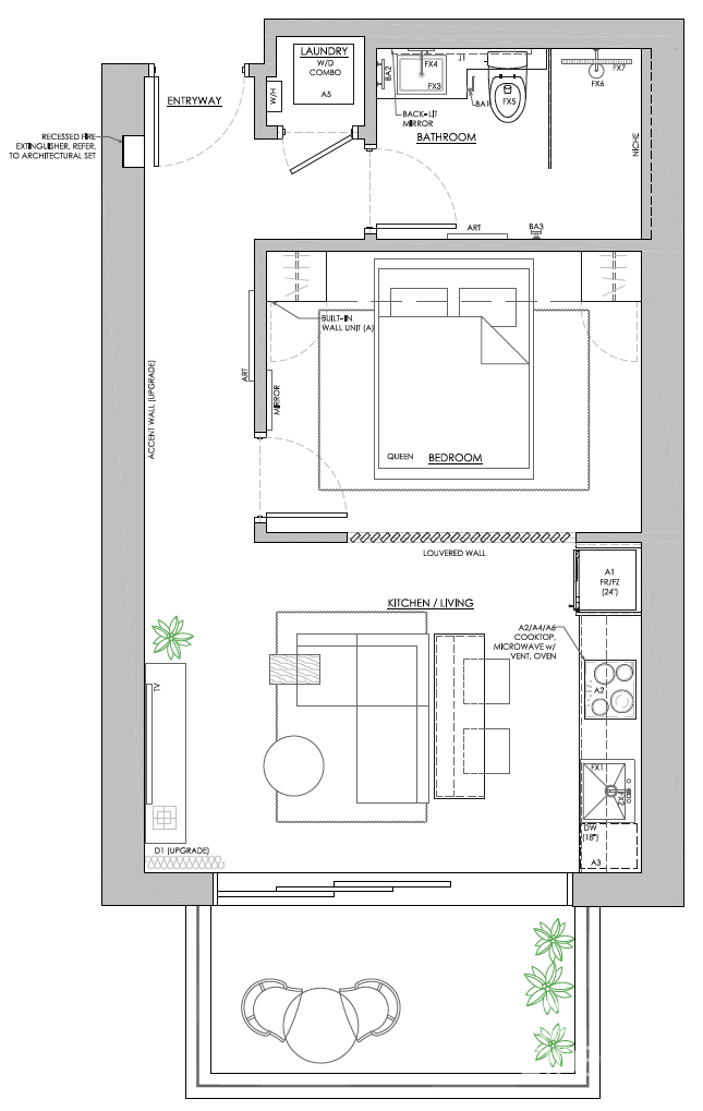
Intelligently designed one bed, one bath residence boasts located on the 7th Floor, (with a view of the ocean ), offers a Modern innovative wall that allows you to convert your bedroom from a quiet sanctuary, to a vantage point from which to enjoy far-reaching views, as well offering as a full kitchen, breakfast bar, lounge area and spacious patio. Enjoy truly “elevated modern island living” at ONE|GT .
Owners will enjoy the privacy of the Owners’ areas, including a pool & elevators that will allow owners only, to specific floors.
Cayman’s Downtown landmark development project, fuses the very best of contemporary urban living from around the world – from the vibrant rooftop beach clubs of Miami and LA, to the local piazzas and street cafés of Europe, and of course with an exquisite Caribbean artistic flair. Comprising a 175-suite boutique hotel and luxury residences, with amazing on-site amenities, ONE|GT is located at the South edge of central George Town, on Goring Avenue, directly behind Bayshore Mall.










